Potable Rainwater Treatment System up to 2150 ft² Roof Surface
Cleanflo’s RainSeeker Maximus 6700L Below Ground Potable Rainwater Treatment System is an all-encompassing solution engineered to effectively harvest, prefilter, store, aerate, manage overflow, and pump rainwater for utilization. These systems meet all CSA B805 and NSF rainwater harvesting standards.
$15,095.00
Description
RainSeeker Maximus System- 6700L Below Ground
Cleanflo’s RainSeeker Maximus 6700L Below Ground Potable Rainwater Treatment System is an all-encompassing solution engineered to effectively harvest, prefilter, store, aerate, manage overflow, and pump rainwater for utilization. These systems meet all CSA B805 and NSF rainwater harvesting standards and features:
– Pre-filtering: This process separates larger particles and oxygenates the rainwater to prevent the growth of anaerobic bacteria.
– Rainwater Storage: Tank is provided for secure storage and easy access.
– Smoothing Inlet: This component gently disperses freshwater in the cistern to avoid stirring up sediment.
– Floating Suction System: This system extracts clear rainwater from about 20 cm below the water surface and delivers it to consumers.
– Overflow Management: This feature routinely flushes the top layer of water to maintain optimal oxygen exchange, prevent barriers, and ensure back flow prevention.
– Fitting Management: The system comes with a hose, flex coupling, and bulkhead fitting for easy installation on site.
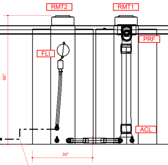
Vida System- Potable System 8GMP Flow Rate
Potable Rainwater Treatment System is a comprehensive solution designed to purify rainwater, making it safe for drinking and other uses. The system is engineered to comply with all CSA B805 rainwater harvesting standards and designed for easy installation and maintenance. Here are the key components and features:
– Advanced Pump: The Pump is an integrated electronic water pressure booster system designed for domestic use, providing constant water pressure and energy savings. It features variable-speed electronics that ensures constant pressure in relation to the flow rate.
– Sediment Cartridge with Housing: Filters out particulates.
– Carbon Cartridge with Housing: Improves taste and odor.
– Additional Sediment Cartridge with Housing: Provides extra filtration.
– Cartridge Housing Mounting Bracket: Securely holds the cartridges.
– UV Treatment System: This system utilizes NSF55 certified ultraviolet light to eliminate bacteria and other microorganisms. The UV system is robust enough to eliminate the need for a chlorine system, offering a chemical-free solution.
*Please note that shipping is included for most urban areas. The exact shipping cost will be determined at the time of shipping based on the actual weight, dimensions, and destination of the package. LTL (Less Than Truckload) shipments typically take 1 to 7 business days for delivery after item let from our warehouse depending on the shipper’s operational capabilities and commitments
Only logged in customers who have purchased this product may leave a review.




Reviews
There are no reviews yet.